В данной инсталляции смонтирован модернизированный вентиль подачи воды производства Alca Plast
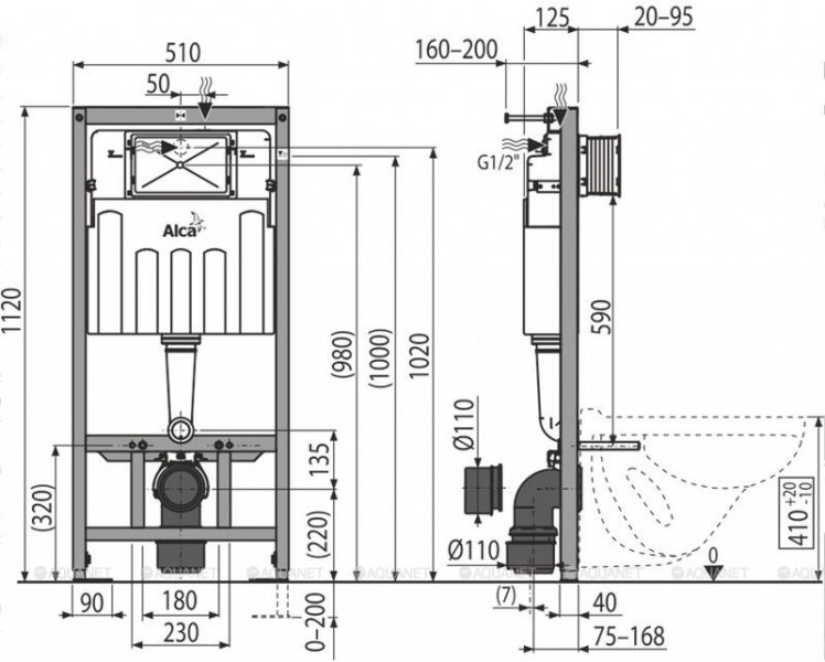
Регулируемые выдвижные ножки в диапазоне 0–200 мм с тормозной системой
*Подвижной держатель для стокового колена, устанавливаемый в восьми положениях на расстоянии 0–93 мм
*Конструкция рамы позволяет производить монтаж к профилю для гипсокартона, предназначенного для этих целей, или к несущей стене
Установленная система закрывается гипсокартонным листом и не нуждается в дополнительных крепежных элементах
*Конструкция полистирольной изоляции предотвращает процесс конденсации на поверхности бачка и ослабляет вибрацию в строительной конструкции
*Возможность установки кронштейна с переходом DG 1/2" для подключения сиденья-биде или бидетты
*Двойной смыв, независимо регулируемый, с гигиеническим резервом
*Подходит для установки пневматического или сенсорного смыва
*Совместима со всеми кнопками управления Alcaplast
*Бачок сделан из одного фрагмента полипропилена, что обеспечивает его 100% герметичность
Регулируемые выдвижные ножки в диапазоне 0–200 мм с тормозной системой
*Подвижной держатель для стокового колена, устанавливаемый в восьми положениях на расстоянии 0–93 мм
*Конструкция рамы позволяет производить монтаж к профилю для гипсокартона, предназначенного для этих целей, или к несущей стене
Установленная система закрывается гипсокартонным листом и не нуждается в дополнительных крепежных элементах
*Конструкция полистирольной изоляции предотвращает процесс конденсации на поверхности бачка и ослабляет вибрацию в строительной конструкции
*Возможность установки кронштейна с переходом DG 1/2" для подключения сиденья-биде или бидетты
*Двойной смыв, независимо регулируемый, с гигиеническим резервом
*Подходит для установки пневматического или сенсорного смыва
*Совместима со всеми кнопками управления Alcaplast
*Бачок сделан из одного фрагмента полипропилена, что обеспечивает его 100% герметичность
|
Материал
|
металл/полипропилен |
|
Цвет
|
черный |
|
Ширина, мм
|
510 |
|
Вид монтажа
|
сухой монтаж |
|
Объем воды большого смыва, л
|
6 |
|
Монтажная глубина, мм
|
125 |
|
Объем воды малого смыва, л
|
3 |
|
Высота, мм
|
1120 |
|
Максимальная несущая способность, кг
|
400 |
|
Объем воды в баке, л
|
9 |
|
Подвод воды сзади
|
Да |
|
Подвод воды сверху
|
Да |
|
Диаметр подключения по воде
|
G1/2 " |
|
По популярности
|
100 |
|
Гарантия
|
15 лет |
Отзывы
Оставить отзыв
Загрузка отзывов...
